Positiva Compañía de Seguros Logo
Reconocimiento de prestaciones asistenciales
Aquí encontraras un espacio de información oportuna y precisa relacionada con el proceso de radicacion, auditoria, conciliación y pago de facturas
Responsive Image
Radicación

Positiva Compañía de seguros S.A. en calidad de gran contribuyente cuenta con diferentes mecanismos que facilitan a nuestros aliados estratégicos la radicación, digitalización y procesamiento de facturas y/o cuentas de cobro a servicios asistenciales prestados a nuestros afiliados.

Podrás realizar la radicación física, en los puntos de atención o en nuestro portal digital
Hoja de papel en una carpeta
Instructivo nuevo portal
Hoja con grafico y una tuerca
Instructivo radicación cuentas médicas
Periodico
Instructivo radicación facturación digital
Hoja con una persona y icono de verificacion
Instructivo radicación facturación electrónica
Group
Auditoria inicial y conciliación de glosas

Positiva pone a disposición para las entidades que prestan servicios asistenciales, el aplicativo web Positiva Cuida Cuentas Médicas mediante el cual, podrán realizar el seguimiento de las facturas radicadas, descargar la notificación de glosa inicial y realizar de forma virtual la sustentación de las glosas (según lo estipulados en la resolución 3047 de 2008).
En este espacio podrá descargar archivos con extensión .rar que contienen la información de pagos de forma semestral para el ramo RL (Riesgos Laborales) y AP (Accidentes Personales). Para descargar soportes de pago de prestaciones asistenciales debes tener en cuenta:
  • Verifica que cuentes con la última versión de Winrar para que no genere error al descargar el archivo.
     
  • Selecciona el archivo que contenga el semestre que deseas consultar.
  • Una vez se descomprima el archivo .rar encontrarás un archivo de Excel el cual debe ser habilitado.
     
  • Para consultar, digita tu número de NIT sin dígito de verificación y haz clic en “buscar”.
Soportes de pago RL (riesgos laborales)

Processing actions...
There are no documents or media files in this folder.
Documents

PAGOS 2025.zip

Javier Moises Rodriguez Vargas, modified 29 Days ago. Home > Documentos integrados a los publicadores en el sitio web > Proveedores > Soportes de pago Riesgo Laboral > Soportes de pago RL Basic Document Approved

PAGOS 2021.zip

Javier Moises Rodriguez Vargas, modified 1 Month ago. Home > Documentos integrados a los publicadores en el sitio web > Proveedores > Soportes de pago Riesgo Laboral > Soportes de pago RL Basic Document Approved

PAGOS 2020.rar

Javier Moises Rodriguez Vargas, modified 2 Months ago. Home > Documentos integrados a los publicadores en el sitio web > Proveedores > Soportes de pago Riesgo Laboral > Soportes de pago RL Basic Document Approved

PAGOS 2024.zip

Javier Moises Rodriguez Vargas, modified 2 Months ago. Home > Documentos integrados a los publicadores en el sitio web > Proveedores > Soportes de pago Riesgo Laboral > Soportes de pago RL Basic Document Approved

PAGOS 2016.rar

Javier Moises Rodriguez Vargas, modified 8 Months ago. Home > Documentos integrados a los publicadores en el sitio web > Proveedores > Soportes de pago Riesgo Laboral > Soportes de pago RL Basic Document Approved

PAGOS 2017.rar

Javier Moises Rodriguez Vargas, modified 8 Months ago. Home > Documentos integrados a los publicadores en el sitio web > Proveedores > Soportes de pago Riesgo Laboral > Soportes de pago RL Basic Document Approved

PAGOS 2018.rar

Javier Moises Rodriguez Vargas, modified 8 Months ago. Home > Documentos integrados a los publicadores en el sitio web > Proveedores > Soportes de pago Riesgo Laboral > Soportes de pago RL Basic Document Approved

PAGOS 2022.rar

Javier Moises Rodriguez Vargas, modified 12 Months ago. Home > Documentos integrados a los publicadores en el sitio web > Proveedores > Soportes de pago Riesgo Laboral > Soportes de pago RL Basic Document Approved

PAGOS 2023.rar

Javier Moises Rodriguez Vargas, modified 12 Months ago. Home > Documentos integrados a los publicadores en el sitio web > Proveedores > Soportes de pago Riesgo Laboral > Soportes de pago RL Basic Document Approved

PAGOS 2019.rar

Javier Moises Rodriguez Vargas, modified 1 Year ago. Home > Documentos integrados a los publicadores en el sitio web > Proveedores > Soportes de pago Riesgo Laboral > Soportes de pago RL Basic Document Approved

PAGOS 2011.rar

Javier Moises Rodriguez Vargas, modified 1 Year ago. Home > Documentos integrados a los publicadores en el sitio web > Proveedores > Soportes de pago Riesgo Laboral > Soportes de pago RL Basic Document Approved

PAGOS 2012.rar

Javier Moises Rodriguez Vargas, modified 1 Year ago. Home > Documentos integrados a los publicadores en el sitio web > Proveedores > Soportes de pago Riesgo Laboral > Soportes de pago RL Basic Document Approved

PAGOS 2013.rar

Javier Moises Rodriguez Vargas, modified 1 Year ago. Home > Documentos integrados a los publicadores en el sitio web > Proveedores > Soportes de pago Riesgo Laboral > Soportes de pago RL Basic Document Approved

PAGOS 2014.rar

Javier Moises Rodriguez Vargas, modified 1 Year ago. Home > Documentos integrados a los publicadores en el sitio web > Proveedores > Soportes de pago Riesgo Laboral > Soportes de pago RL Basic Document Approved

PAGOS 2015.rar

Javier Moises Rodriguez Vargas, modified 1 Year ago. Home > Documentos integrados a los publicadores en el sitio web > Proveedores > Soportes de pago Riesgo Laboral > Soportes de pago RL Basic Document Approved
{title}
Right Now by
  • thumbnail
    Right Now by

    {title}

  • Soportes de pago AP (accidentes personales)

    Back

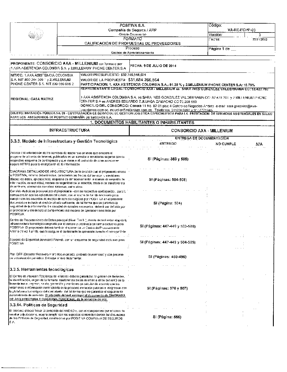
    5 VERIFICACION TECNOLOGIA INFRAESTRUCTURA (1).pdf

    Copyright © 2025 | Todos los derechos reservados

    flecha
    flecha

    Cookies

    Utilizamos cookies propias y de terceros para mejorar nuestros servicios.

    Aviso de Cookies
    Saltar al contenido principal
    × ¿Te puedo ayudar?